À Toulouse, rénover plutôt que restaurer une maison bourgeoise c’est lui redonner vie, donner envie à ses occupants d’y vivre tout simplement. À la baguette, la pétillante Cécilia Febrer.
Photos : David Nakache
Rénovation très Art déco. Dans la cage d’escalier, peinture parme (Le Comptoir Seigneurie Gauthier, Toulouse), peinture bleu électrique dans le bureau (Ressource Peintures, Toulouse). Portes en métal thermolaqué dessinées par Cécilia Febrer.
La cage d’escalier et le vestibule restituent le décor de la maison.
Nul doute que Cécilia Febrer compte parmi les architectes d’intérieur toulousains les plus doués de sa génération. Originaire d’Albi, elle fait les Beaux-Arts à Toulouse, option design d’espace, avant de s’installer en 2009. Très vite, Bernard Catugier de l’agence Arcat, architecte d’intérieur de référence sur la région, la sollicite. Leur collaboration va durer 8 ans. « Il m’a tout appris, indique Cécilia Febrer. J’ai eu beaucoup de chance de travailler avec lui. » En 2015, la jeune architecte d’intérieur reconnue par le CFAI (conseil français des architectes d’intérieur) crée son agence dans un petit local, qu’elle vient de quitter pour plus grand, toujours dans l’hyper centre de la Ville rose. On fait appel à elle sur Toulouse et sa couronne, mais aussi à Paris et Biarritz. Elle s’intéresse de près au travail de ses consœurs Laura Gonzalez et Sarah Lavoine. Cécilia Febrer suit les tendances dans les magazines et dans les magasins, et est toujours à l’écoute des fournisseurs de matériaux et des artisans avec qui elle a l’habitude de travailler.
En 2016, un an après l’achat d’une maison des années 1920 à Toulouse, les propriétaires souhaitent rénover les combles pour récupérer un étage supplémentaire. Une chambre, avec fenêtre, cheminée et cabinet de toilette, y sépare deux greniers sous rampants. Cloisons en briquettes et poteaux de bois, moulures au plafond et parquet en pitchpin en très bon état. « Dans cette maison bourgeoise, les combles offrent un beau volume : 3 mètres sous faîtage, 100 m² de plancher dont 80 m² où la hauteur sous plafond est d’1,80 m minimum », se souvient Cécilia Febrer à qui ils confient le projet.
L’architecte d’intérieur Cécilia Febrer.
À ce troisième et dernier étage, les propriétaires souhaitent créer une suite parentale avec une chambre spacieuse, un dressing, une salle de bains, un toilette, un bureau et un débarras. Également, un coup de jeune est prévu pour la cage d’escalier.
« D’abord je travaille la volumétrie, l’espace, l’aménagement. Ensuite je réalise le chiffrage. Enfin, je fais des propositions concernant le choix des matériaux. Le choix des couleurs arrive toujours en dernier. » Après cela, comme un chef d’orchestre, Cécilia Febrer met en musique le chantier.
Les travaux vont durer 3 mois. Les artisans et fournisseurs auxquels elle fait appel, elle les connaît bien : « cela fait longtemps que je travaille avec eux ». Parmi lesquels, le plaquiste C & B rénovation (Toulouse), le métallier Frantz Revert de l’entreprise E.D’EN (Tarn), le menuisier Consola menuiserie (Tarn).
Des cloisons en briquettes, l’architecte d’intérieur en fait tomber quelques-unes mais elle conserve tout ce qui peut l’être : « J’évite les surcoûts de structure ». La toiture est isolée par du Triso-Super 12 d’Actis, un isolant mince réflecteur, pour ne pas perdre de hauteur sous plafond. Elle fait installer des fenêtres de toit Velux dans la salle de bains et dans le dressing. Les réseaux d’eau et évacuation sont déplacés, tout comme les radiateurs.
Un style Art déco
Quoi de plus naturel que d’opter pour un style Art déco dans cette maison des années 1920 ? Raison de plus : l’Art déco est de nouveau en vogue cette année. Ici, l’architecte d’intérieur Cécilia Febrer va l’évoquer sur les portes et fenêtres qu’elle dessine et dont elle confie la fabrication à son métallier Frantz Revert. Conçues en métal thermolaqué et verre, elles rappellent les lignes et le dessin de cet art décoratif de l’entre-deux-guerres. On va également retrouver ce style dans la salle de bains avec les appliques Flos (Voltex, Toulouse).
« Les clients m’ont fait confiance. J’ai respecté le budget et les délais. C’est un projet qui fonctionne vraiment. On s’est appuyé sur les valeurs sûres de la déco avec des couleurs un peu punchy. Les clients avaient beaucoup de goût. »
Près d’un siècle après sa construction, cette maison retrouve tout son apparat, sans faute de goût, toujours dans le coup.

Chambre au 3e. De part et d’autre de la tête de lit bleu Sarah Lavoine, deux portes donnent accès au dressing. Murs peints en gris léger, corniches et plinthes en gris plus soutenu. Suspension Céline Wright (Terra Rosa, Toulouse). Interrupteurs tétines Arnould. Radiateur en fonte décapé et repeint.
Dans la chambre. Plancher en pitchpin et cheminée sont d’origine. La double porte en métal thermolaqué et verre donne sur la salle de bains.
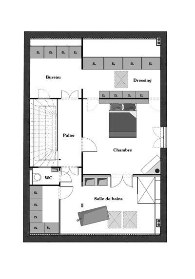
Le plan de l’étage rénové. Très beau travail de symétrie. Symétrie autour de la tête de lit, symétrie des fenêtres sur le palier (du bureau et des WC), symétrie des fenêtres de toit. Notez que le lit est dans l’axe de la double porte de la salle de bains et des Velux.
Salle de bains sous les toits. Salle de bains Porcelanosa (Toulouse) : baignoire, carrelage en marbre statuaire et robinetterie proviennent de la marque espagnole. Receveur de douche antidérapant (1,60x1m), délimité dans sa longueur par la poutre qui sert à fixer la paroi de douche. Plancher en pitchpin traité.
Salle de bains très Art déco. Dans la chambre, une fois poncé, teinté et ciré, le parquet en pitchpin a retrouvé son lustre d’antan.
Un meuble sous vasque sur-mesure en marbre statuaire. « J’ai travaillé un gabarit en bois avec le menuisier, indique Cécilia Febrer, puis avec le marbrier j’ai habillé tout le meuble. » Applique Flos (Voltex, Toulouse).
Couleur stimulante. Dans le bureau, bleu assez électrique de chez Ressource Peintures (Toulouse). Dressing réalisé par Consola Menuiserie.
Enregistrer
Enregistrer
Enregistrer
Enregistrer
Enregistrer
Enregistrer
Enregistrer
Enregistrer
Enregistrer
Enregistrer
Enregistrer
Enregistrer
Enregistrer
Enregistrer
Enregistrer
Enregistrer
Enregistrer
Enregistrer
Enregistrer
Enregistrer
Enregistrer
Enregistrer
Enregistrer
Enregistrer
Enregistrer
Enregistrer
Enregistrer
Enregistrer
Enregistrer
Enregistrer
Enregistrer
Enregistrer
Enregistrer
Enregistrer
Enregistrer
Enregistrer
Enregistrer
Enregistrer
Enregistrer
Enregistrer
Enregistrer
Enregistrer
Enregistrer






